【30坪】家事動線のいい間取りの作り方とは|平屋・2階建ての間取り事例も紹介

「キッチンと洗面所が遠くて往復が多い」「洗濯物を干しに行くたびに家族の邪魔になる」といった家事の負担やストレスは、間取りの工夫次第で大きく変わります。
そこで本記事では、家事をスムーズに進めるための間取りのコツについて、30坪の2階建て・平屋の事例とあわせて詳しくご紹介します。
| コラムのポイント |
|---|
|
・ご家族の通り道と家事のルートが重ならないように設計することで、お互いの動きが干渉せずスムーズに動けるようにしましょう。 |
家事動線のいい間取りを作るコツ

はじめに、家事動線のいい間取りを作るのに効果的なコツをご紹介します。
家族の通り道(生活動線)と家事動線が重複しないようにする
家事をしている人の動線と、ご家族が日常的に行き来する生活動線が重ならない間取りにしましょう。
家事動線と生活動線が交差してしまうと、料理中に何度も人が横切ったり、洗濯したくても通路が塞がれてしまうなど、お互いの動きが干渉してしまいます。
- ・料理・配膳・片付けを行う人の動線が干渉しないように、アイランドキッチン+横並びダイニングにする
- ・生活スペースを通り抜けなくて済むように、ランドリールームをバルコニーに直結させる
- ・リビング動線に重ならないように、パントリーをキッチン背後に設ける
上記のように、家事動線を生活上の通り道から外れた位置に配置しましょう。
動線を分けることで、家事をする人もご家族も、それぞれのペースでストレスなく動けます。
水回りをまとめて無駄な往復を減らす
キッチン・洗面所・浴室・トイレなどの水回りは、家事を行う頻度が高い場所のため、家の中で点在していると無駄な往復が増えてしまいます。
体力と時間を余分に消耗するのを防ぐためにも、できる限り一箇所に集約して移動距離を減らしましょう。
具体的な方法は次の通りです。
- ・家事を同時進行できるようにキッチン・洗面所・洗濯機を一直線に並べる
- ・バスルームをランドリールームとバルコニーにつないで、脱ぐ→洗う→干すを最短ルートにする
こういった工夫を取り入れることで、家事の移動距離を最短にできるだけでなく、洗濯機を回しながら料理するといった"ながら家事"もスムーズにこなせます。
洗濯機・物干しスペース・収納を近い位置に配置する
洗濯は、洗う→干す→しまうといった工程がセットになった家事のため、洗濯機・物干しスペース・収納がそれぞれ離れた場所にあると、効率的に進められません。
「濡れた洗濯物を抱えて行き来するのが面倒」「取り込んだ洗濯物をしまう場所が遠い」と悩まないためには、できる限り近くにまとめて配置しましょう。
たとえば、洗面所にランドリールームを隣接し、物干しスペースと収納棚まで設けると、家事の負担を大きく減らせます。
回遊動線を採用して家事中の移動をスムーズにする
回遊動線とは、家の中をぐるりと一周できるように設計された動線です。
回遊動線を採用して行き止まりのない間取りにすることで、家事の途中に来た道を引き返す必要がなくなり、行ったり来たりせずに最短ルートで移動できます。
移動の無駄が減れば家事全体の時間が短縮されるほか、体への負担も比較的かかりません。
動線上に収納スペースを設けて物の出し入れを効率化する
動線上に収納スペースを設けることで、必要な物をその場ですぐに取り出せるようになり、家事をスムーズに続けられます。
たとえば、キッチン近くにはパントリー、洗面所の近くにはタオルや洗剤などの収納棚を設ければ、別の部屋まで取りに行く手間がかかりません。
効率的に家事を終えるためにも、使う場所のそばにしまうことを意識して収納を計画しましょう。
掃除用具は掃除をする場所の近くに収納する
掃除をしたい時にすぐに取り掛かれるように、トイレにはトイレ用の掃除用具、リビング近くにはフロアワイパーなど、使う場所のそばに用具を収納しましょう。
掃除用具を一箇所にまとめて収納してしまうと、掃除のたびに道具を取りに行く必要があり、また元の場所へ戻す手間もかかります。
掃除が面倒になり後回しになるのを防いで習慣化させるためにも、動線と収納を一致させましょう。
対面キッチンやアイランドキッチンで配膳動線を短くする
対面キッチンやアイランドキッチンは、ダイニングやリビングに向かって開いた構造で、調理スペースと食卓の距離が近くなります。
料理が完成したらすぐに食卓に運べる距離のため、配膳のために何度も部屋を往復する必要がありません。
また、食事が終わった後も、食器をダイニングからキッチンへ戻す動線が短く、片付けもスムーズです。
パントリーを設けて食材・調理器具の取り出しをスムーズにする
パントリーとは、キッチンの近くに設ける食材や調理器具専用の収納スペースです。
パントリーを設置すれば、食材や器具をすぐに取り出せるため、調理をスムーズに進められます。
また、食品関連を一箇所でまとめて保管できることで、ストック管理がしやすくなるのも助かるポイントです。
玄関からキッチン、パントリーへ直結する土間を設ける
玄関からキッチン、パントリーへ直結する土間を設ければ、帰宅後すぐに食材を収納場所まで運べます。
土間であれば汚れを気にせず使用でき、まとめ買いした食品や飲料などを置いておくのも問題ありません。
重い荷物を持って移動する負担をできる限り抑えるためにも、買い物後の片付けが一直線で完結するような間取りにしましょう。
福井県で注文住宅を建てたい方には、こちらの記事もおすすめです。
〈関連ページ〉福井県の注文住宅はいくらで建つ?建築費用・土地取得費用の相場を解説
【30坪・2階建て】家事動線のいい間取り事例

ここからは、30坪で2階建ての家事動線のいい間取り事例をご紹介します。
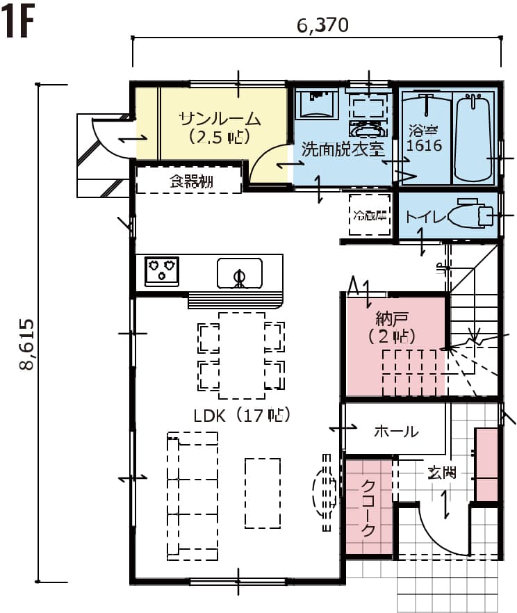
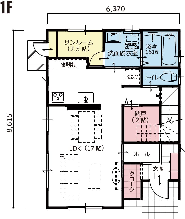
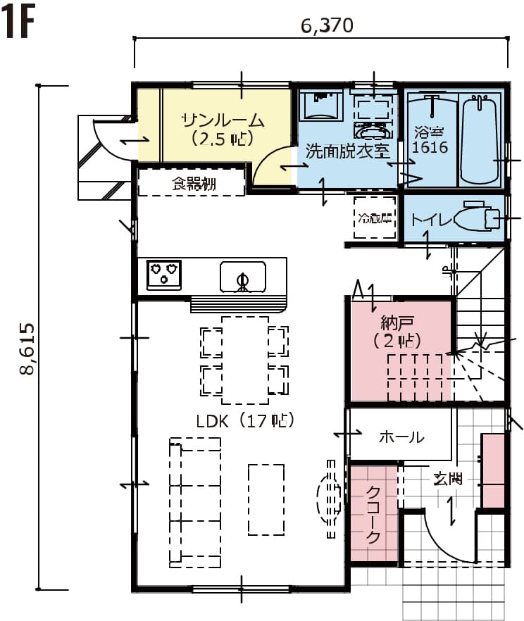
30坪・2階建ての家事動線のいい間取り事例①
延べ床面積が約30坪の2階建ての事例です。
キッチンの近くにトイレ、洗面脱衣室、浴室といった水回りを集約し、ながら家事を進められる間取りになっています。
洗面脱衣室の隣にはサンルームを設けたことで、洗濯物を洗って干す作業をスムーズに行えるのもポイントです。
|
項目 |
面積 |
|
1階床面積 |
52.06 ㎡ |
|
2階床面積 |
46.26 ㎡ |
|
延べ床面積 |
98.32 ㎡(29.74坪) |
|
施工面積 |
99.97 ㎡(30.24坪) |
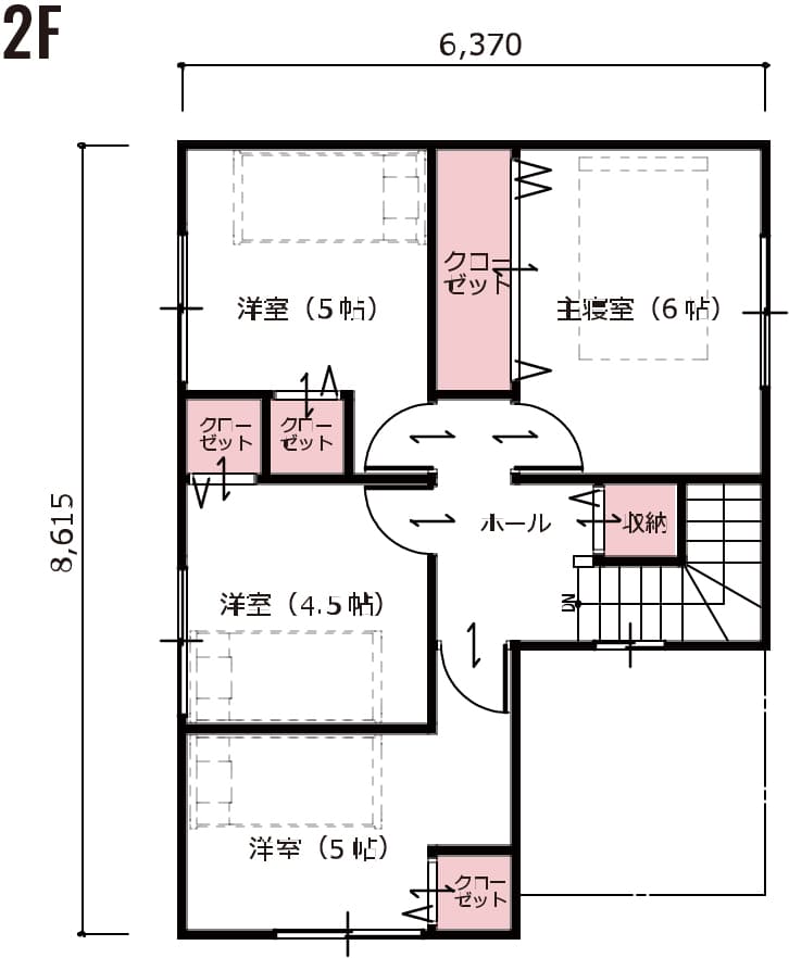
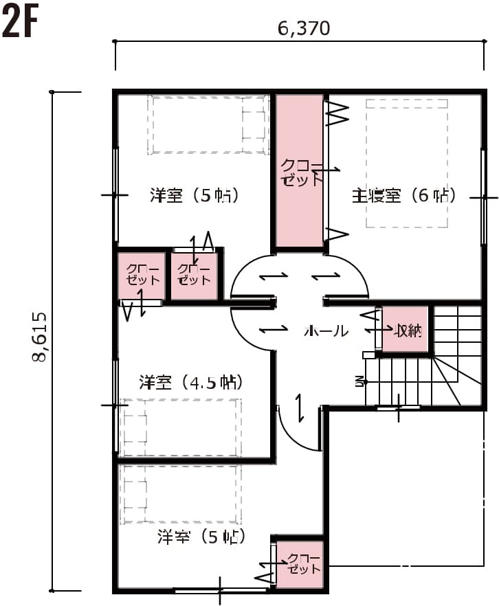
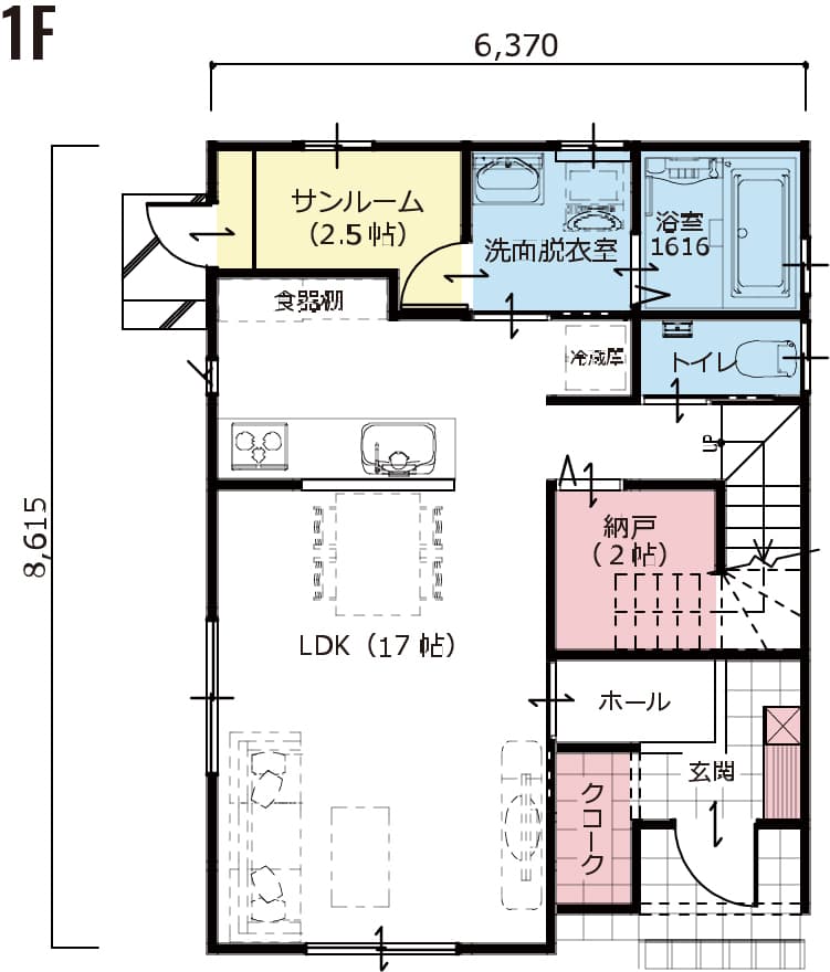
30坪・2階建ての家事動線のいい間取り事例②
延べ床面積が約30坪の2階建てで、より部屋数を確保した間取りの事例です。
1階の水回りは一箇所にまとめて配置しているほか、2階の収納は各部屋に分散させました。
ご家族それぞれに専用の収納を設けられることで、片付けのストレス軽減も期待できます。
|
項目 |
面積 |
|
1階床面積 |
52.06 ㎡ |
|
2階床面積 |
46.26 ㎡ |
|
延べ床面積 |
98.32 ㎡(29.74坪) |
|
施工面積 |
99.97 ㎡(30.24坪) |
リョーエンホームの施工事例が気になる方は、こちらよりごらんください。
30坪ほどの3〜4人世帯向けの家を建てたい方には、こちらの記事もおすすめです。
〈関連ページ〉【30坪の注文住宅】地域別の相場や費用に差が出るポイント、間取り実例まで紹介
【30坪・平屋】家事動線のいい間取り事例

続いて、30坪の平屋で家事動線のいい間取り事例をご紹介します。
30坪・平屋の家事動線のいい間取り事例①

延べ床面積が約30坪の平屋の事例です。
対面キッチンで配膳・片付けをスムーズに行えるほか、洗面脱衣室や浴室、サンルームを近くに配置し、洗濯動線を短縮しています。
|
項目 |
面積 |
|
延べ床面積 |
96.05 ㎡(29.05坪) |
|
施工面積 |
99.36 ㎡(30.05坪) |
30坪・平屋の家事動線のいい間取り事例②

延べ床面積約30坪の平屋で、主寝室に洋室2部屋、和室まで設けた事例です。
動線上に分散して配置された収納は、家事の効率を高めているだけでなく、各部屋の緩衝帯としても役立ちます。
平屋ならではの生活音の問題も解決できる間取りです。
|
項目 |
面積 |
|
延べ床面積 |
96.05 ㎡(29.05坪) |
|
施工面積 |
99.36 ㎡(30.05坪) |
その他の間取り事例については、こちらよりご確認ください。
こちらの記事では、25坪〜30坪程度の平屋に関して解説しています。
平屋を検討中の方は、ぜひごらんください。
〈関連ページ〉3LDK(25〜30坪)の平屋間取り実例4選|間取りアイデアや費用目安も紹介
まとめ
家事動線のいい間取りを実現するには、水回りの集約・回遊動線・動線上の収納計画など、複数の工夫を組み合わせることが大切です。
今回ご紹介したコツと間取り事例を参考に、ご家族全員がストレスなく過ごせる住まいづくりを叶えましょう。
福井県で家事動線がよく暮らしやすい家を建てたい方は、リョーエンホームまでお気軽にご相談ください。






