【30坪の注文住宅】地域別の相場や費用に差が出るポイント、間取り実例まで紹介

30坪の注文住宅は、3LDK〜4LDK程度の間取りで、3〜4人家族まで余裕を持って暮らせます。
しかし、費用がいくらかかるのか気になる方も多いのではないでしょうか。
そこで本記事では、30坪の注文住宅の費用相場や、費用に差が出るポイントを解説します。
実際の間取り実例も紹介するので、ぜひ参考になさってください。
| コラムのポイント |
|---|
| ・30坪の注文住宅の相場は、約3,800万円(土地代+建物価格は約5,400万円)です。 ・福井県で30坪の注文住宅を建てる場合、坪単価は約103.5万円で、30坪の建築費は約3,105万円となります。 ・費用をできる限り抑えたい場合は、建物の形状や間取りをシンプルにする、設備のグレードを高くしすぎないなどの工夫が必要です。 |
Contents
30坪の注文住宅の費用相場

30坪の注文住宅の相場を国土交通省の「令和6年度住宅市場動向調査報告書」をもとに算出すると、約3,800万円となります。
ちなみに、土地代+建物価格で算出すると、約5,400万円が相場です。
〈参考〉国土交通省の「令和6年度住宅市場動向調査 報告書」における注文住宅(全国)の購入資金平均6,188万円、注文住宅の延べ床面積平均113.8㎡(約34.4坪)をもとに計算
地域別にみる30坪の注文住宅の費用相場

新築の注文住宅を建てる費用は、地域によって大きく異なります。
住宅金融支援機構の「フラット35利用者調査」(2024年度)のデータをもとに、30坪の注文住宅の費用目安をまとめると、以下の通りとなります。
|
地域 |
坪単価目安/坪 |
建築費目安 |
|
全国 |
110万円 |
3,300万円 |
|
首都圏 |
120万円 |
3,600万円 |
|
東北圏 |
99万円 |
2,970万円 |
|
近畿圏 |
112万円 |
3,360万円 |
|
北陸圏 |
106万円 |
3,180万円 |
|
東海圏 |
110万円 |
3,300万円 |
|
中国圏 |
112万円 |
3,360万円 |
|
九州圏 |
104万円 |
3,120万円 |
ちなみに、福井県のみの費用相場となると、住宅面積の平均は137.1㎡、建設費の平均が4,293万円です。
そのため、坪単価は約103.5万円となり、30坪の建築費は約3,105万円となります。
|
費用項目 |
目安 |
|
福井の注文住宅(30坪)の坪単価 |
103.5万円 |
|
福井の注文住宅(30坪)の建築費用 |
3,105万円 |
上記の価格に加え、土地の購入費用や諸費用が発生することを押さえておきましょう。
〈参照〉住宅金融支援機構「フラット35利用者調査」(2024年度) 集計表(注文住宅)
こちらの記事では、福井県で注文住宅を建てたい方向けに、費用について詳しく解説しています。
〈関連ページ〉福井県の注文住宅はいくらで建つ?建築費用・土地取得費用の相場を解説
また、リョーエンホームでは30坪で1,980万円(税込)からの家づくりが可能なので、気になる方はこちらよりお問い合わせください。
注文住宅の初期費用が変わるポイント

同じ30坪の注文住宅であっても、相場より費用が高くなる場合もあれば、安くなる場合も少なくありません。
注文住宅の購入費用が変わる主なポイントは、次の6点です。
建物形状の複雑さ
建物形状は、複雑であればあるほど建築費用が高くなります。
屋根の形状が複雑な場合や、外観の凹凸が多い場合、材料費がかさんで施工の手間も増えるためです。
例えば、コの字型の住宅にした場合、正方形や長方形の住宅より外壁面積が増えるため、建築費用は高くなります。
また、形状が複雑だと構造計算の手間もかかり、設計費用が高くなることもめずらしくありません。
予算が限られる場合は、できる限りシンプルな形状の家を建てましょう。
階数の多さ
注文住宅は、坪数が同じであっても階数の多さで費用が変わります。
平屋の場合、二階建てや三階建ての家よりも屋根や基礎の面積が広いため、材料費も施工費も増えるのが一般的です。
二階建ての場合、一階と二階がほぼ同じ面積の総二階建てであれば、形状がシンプルで屋根や基礎の面積も抑えられるため、比較的リーズナブルといえます。
また、三階建ての家の場合、十分な強度を確保するために柱や梁を太くしなければならず、材料費や工事費も膨らむので注意しましょう。
間取りの複雑さ
注文住宅では、外観だけでなく間取りの複雑さも費用を左右します。
部屋数が多い場合は、その分多くの壁や建具が必要となるため、建築費用が高くなるのが一般的です。
その一方で、部屋数が少なくゆるやかにゾーニングされている部屋であれば、材料費や施工費を軽減できます。
費用を抑えたい場合は、外観だけでなく間取りの複雑さにも注意しましょう。
水回りの集約・分散
キッチン、洗面所、浴室、トイレの水回り設備は、できる限り一箇所に集約することで、施工費用を抑えられます。
水回りがまとまっていると、給排水管やガス管の工事距離が短くなるので、施工費用も軽減されるためです。
また、二階建てで一階と二階の両方にトイレを設置したい場合、上下で同じ位置に揃えておくと、配管工事費用が軽減されます。
内装材や設備のグレード
注文住宅に使用する内装材や水回り設備などのグレードが高い場合、建築費用も高くなってしまいます。
例えば、合板フローリングではなく無垢材のフローリングにする場合、1㎡につき5,000〜2万円以上することもあり、樹種によっては非常に高額です。
また、キッチンやトイレ、ユニットバスなどの水回りも、グレードによって費用が大きく異なります。
なかでも高額になりやすいのがキッチンで、標準グレードと高グレードの費用を比較してみると、100万円以上の差が出る場合も少なくありません。
住宅性能
住宅性能の高さは、建築費用を大きく左右するポイントです。
住宅性能を上げるためには、外皮の断熱強化や窓の高断熱化、開口部や取り合い部の気密処理、耐震性を上げるための基礎や接合部の補強など、さまざまな工事が行われます。
工事範囲が広くなりやすいほか、部材や建材が高価で、専門的な技術が必要とされることから、どの工事も費用が高い傾向にあります。
リョーエンホームでは、住宅性能とコストのバランスが取れた家を提供しています。
高気密・高断熱で、北陸の厳しい寒さにもしっかり対応できる家を建てたい方は、こちらよりお問い合わせください。
30坪の注文住宅を建てるなら工務店・ハウスメーカーのどちらがおすすめか

30坪の注文住宅を建てる場合、自由設計や地域に密着した対応を重視するなら工務店、標準化された品質や短工期を重視するならハウスメーカーをおすすめします。
それぞれのおすすめの人の特徴は、次の通りです。
工務店をおすすめするケース
次にあげる特徴に該当する場合、注文住宅の建築は工務店に依頼することをおすすめします。
- ・細部まで自由設計でこだわりたい
- ・地域の気候や土地条件に合った提案を重視したい
- ・担当者や職人と密に相談しながら家づくりを進めたい
- ・施工後も近距離で継続的に相談できる業者に依頼したい
- ・比較的工期に余裕がある
ハウスメーカーをおすすめするケース
一方で、次の4つの特徴に当てはまる場合、ハウスメーカーに依頼することをおすすめします。
- ・比較的短い工期で品質の安定した家を建てたい
- ・打ち合わせの負担はあまりかけたくない
- ・ブランド力や知名度を優先したい
- ・できる限り工期を短く抑えたい
30坪の注文住宅の間取り実例

最後に、30坪の注文住宅の間取り実例を紹介します。
30坪だとどのような間取りになるのか気になる方は、ぜひ参考にしてください。
30坪の注文住宅の間取り実例①


広々としたLDKに、洋室2部屋、寝室1部屋を設けた30坪の家の実例です。
廊下をなくしてクローゼットで空間を分離することにより、居住面積と収納のどちらも十分に確保し、延べ床面積を最大限に活用しました。
サンルームは洗面脱衣室の隣に設けることで、家事動線を効率化しています。
| 延べ床面積 | 29.74坪(98.32㎡) |
| 施工面積 | 30.24坪(99.97㎡) |
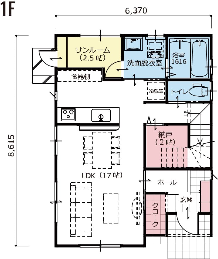
30坪の注文住宅の間取り実例②


部屋数や収納ともに充実した30坪の家の実例です。
1階には開放的な17帖のLDKを設け、2階には洋室3部屋、主寝室を1部屋設けました。
納戸やシューズクローク、クローゼットなど収納も充実しています。
| 延べ床面積 | 29.74坪(98.32㎡) |
| 施工面積 | 30.24㎡(99.97㎡) |
30坪の注文住宅の間取り実例③

延べ床面積約30坪で、平屋建てを採用した実例です。
18帖のLDKに洋室2部屋、和室を1部屋設け、洋室の間はクローゼットで分離し、家族間のプライベートも守りやすくしました。
サンルームの横には収納を設け、洗濯後のタオル、パジャマなどをすぐに収納するのに役立ちます。
| 延べ床面積 | 29.05坪(96.05㎡) |
| 施工面積 | 30.05坪(99.36㎡) |
30坪の注文住宅の間取り実例④

延べ床面積約30坪でありながら、LDKに加えて洋室2部屋に寝室1部屋、畳コーナーまで設置した実例です。
収納の位置や広さを工夫することで、30坪の平屋でありながらも部屋数を十分に確保しました。
リビングの奥に畳コーナーを設置することで、リラックスできるセカンドリビングのように活用できます。
| 延べ床面積 | 29.05坪(96.05㎡) |
| 施工面積 | 30.05坪(99.36㎡) |
リョーエンホームでは、ベーシックスタイル・レコメンドスタイル・エクセレントスタイルの3つのラインナップをご用意しています。
30坪の場合、ベーシックスタイルは1,980万円〜、レコメンドスタイルであれば2,475万円〜、もっともハイグレードなエクセレントスタイルであっても2,805万円〜で提供しているので(いずれも税込)、気になる方はこちらより詳細をご確認ください。
まとめ
30坪の注文住宅と一口に言っても、地域や建物の形状、設備のグレードによって費用は大きく異なります。
リョーエンホームでは、施工品質や住宅性能が高く、コストバランスの取れた住まいを1,980万円から提供しているので、ぜひお気軽にお問い合わせください。


